18611994737

首页 >> 产品中心 >>华为室外柜 >> 华为ICC710-HA1-C7室外机柜
详细说明

华为ICC710-HA1-C7室外机柜

暂无价格
  • 产品说明

 华为ICC710-HA1-C7室外机柜

 

4-16 ICC710-HA1-C7 外观

 


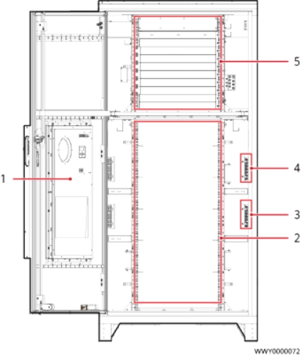
4-17 ICC710-HA1-C7 内部结构(正面)

 

1 )照明灯                              2)烟雾传感器                       3)风机盒

4)温控设备电源转接盒         5)接地排                              6)数字温湿度传感器

7 )热交换                             8)水浸传感器                       9-48V母排

10)电池安装空间                   11 RTN+母排                        12)设备安装空间

13DCDU-600AN1


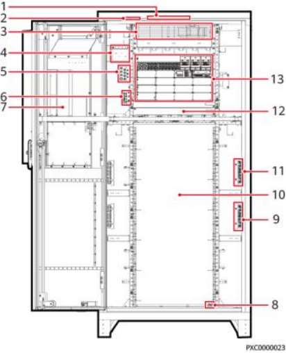
4-18 ICC710-HA1-C7 内部结构(背面)

 

1 PC1500D-1                                  2)电池安装空间                   3-48V母排

4RTN+母排                        5)设备安装空间

 

4-7 ICC710-HA1-C7 技术规格

 

项目

说明

室外机柜

温控:热交换HXC150S 150W/K散热能力(设备舱); 流空调PC1500D-1 1600W制冷量(电池舱)

尺寸(高××):1925mm×900mm×950mm(不含门外 凸部分),1925mm×900mm×1270mm(含门外凸部分)   重量:<320kg

安装方式:落地安装/楼顶安装

维护方式:前维护

走线方式:下进下出线

设备安装空间

14U

电池安装空间

最大支持123U  ESM电池

工作温度

0℃~+45℃(包含太阳辐射)

运输温度

–40℃~+70

存储温度

–40℃~+70

 


 

项目

说明

工作湿度

5%RH~95%RH(无凝露)

海拔要求

0m~4000m(在2000m~4000m环境下高温降额,每升高 200m,工作温度降低1 ℃)

噪声等级

满足GR487要求,噪声声压≤65dBA@1.5m(环境温度45℃ 时)

防护等级和工作环境

IP55 C类环境

其他要求

  没有导电尘埃和腐蚀性气体、没有爆炸危险

  灰尘度、腐蚀性物质、有害生物、霉菌等指标应符合ETSI EN 300 019-1-4( V2.2.1 Class 4.1要求


电话直呼
在线客服
在线留言
发送邮件
联系我们:
18611994737
客服1
点击这里给我发消息
还可输入字符250(限制字符250)
技术支持: 建站ABC | 管理登录
×
seo seo